Якщо ви вирішили побудувати теплицю, рекомендуємо ознайомитися з інструкцією, наведеною в нашій статті.

Підбираємо місце для розміщення

Вибір місця слід здійснювати з урахуванням того, що в ній будуть рости і дозрівати культурні рослини. А значить, краще зупинитись на рівній ділянці землі, захищеному від вітру і з достатньою кількістю сонячного світла.

Монтаж конструкції на ґрунті з нахилом спровокує її руйнування.

Справа в тому, що в зимовий час навантаження снігу розподіляється нерівномірно, а для середніх широт вона часто буває вагомою. Для парника не підходить затінене місце, наприклад, біля дерев, будівель або огорожі.

Для кращого облаштування парника проведіть в нього воду і електрику. Щоб заощадити на цьому процесі, розташовуйте теплицю не дуже далеко від енергетичних джерел. Щоб вирощувати рослини і взимку, вам потрібно побудувати опалювальну конструкцію. В такому випадку вам доведеться стежити, щоб на покритті не застоювався сніг, бо інакше в неї не буде проникати сонячне світло.

Визначаємо форму і розмір парника

Теплица своими руками: поэтапная инструкцияНевелика теплиця з полікарбонату

Парники різняться за розміром, формою і використовуваних матеріалах. Тим не менш, головною відмінністю вважається рівень температури, яка в них підтримується. В цілому такі конструкції можна розділити на 2 види:

  1. Неопалювальний парник – в ньому відсутній підігрів, з-за чого грунт промерзає взимку. У весняний період грунт прогрівається за рахунок сонячного світла, а теплиця допомагає зберегти в ній тепло. Так продовжується сезонний період росту культурних рослин. Такі конструкції використовують для вирощування ранніх культур овочів і розсади квітів.
  2. Опалювальний парник призначений для теплолюбних рослин. У них можна підтримувати певну температуру, яка найбільш сприятлива для росту теплолюбних культурних рослин.

Вибираємо форму теплиці:

  • Конструкції з двосхилим дахом – це звичайний тип парників, мають вертикальні стінки.
  • Прибудоване до стіни будівлі споруда з двосхилим дахом – надає велику можливість світло — і повітрообміну.
  • Парник з односхилим дахом являє собою прибудову до стіни будинку. Для кращого сонячного обігріву її слід встановлювати з західної або південної сторони будівлі. Стіна будинку в цьому випадку відіграє роль силового елемента каркаса, завдяки їй забезпечується надійний захист від північних вітрів.
  • Трапецієвидна, має двосхилий дах, володіє високою стійкістю. Вона тепла і світла на відміну від свого аналога з вертикальними стінками.
  • Багатокутник забезпечує нерівномірне прогрівання сторін споруди. Щоб уникнути проблем з перегрівом дуже важливо забезпечити її оконцами або кватирками. Це необхідно для своєчасного провітрювання.
  • Купол адаптована до поривчастих вітрів, але не призначена для вирощування високих культур.
  • Тунель розроблена для вирощування овочів, які ростуть на землі, а не у висоту. Вона найбільш доступна для самостійного виробництва.
  • За типом арки дозволяє вирощувати низькі рослини.
  • Міні-парник підходить для вирощування невеликої кількості рослин, а також зручний при наявності маленького простору під посадку.

Матеріали для будівництва каркаса і покриття

Теплица своими руками: поэтапная инструкцияКвадратний профіль

Зараз на ринку представлено безліч варіацій матеріалів для монтажу каркасу. Наприклад, сталевий каркас покривають порошковою фарбою. Це досить міцний матеріал, однак, він піддається корозії, з-за чого недовговічний. Для нього характерна висока теплопровідність, але у виняткових випадках такий ефект не вітається.

Оцинкований профіль має низький показник міцності, але не іржавіє. Для його виготовлення використовується тонка, легко деформирующаяся сталь.

Він дуже міцний і не схильний до корозії, зрозуміло, з-за оцинковки. Крім того, каркас можна зробити з оброблених антисептиком брусків.

Якщо говорити про покриття, то кожен матеріал, який призначений для цього, має як плюси, так і мінуси. Наприклад, парникову плівку легко замінити. Вона також недорого коштує, невимоглива до умов застосування. Форма його може бути арочної з прямими стінами або традиційної, у вигляді арки. Плівку можна залишати на парнику зимувати, так вона прослужить вам не більше 4 років.

У парникової плівки низька теплоізоляція і вона нестійка до механічних пошкоджень.

Теплица своими руками: поэтапная инструкцияПолікарбонат

Останнім часом стала користуватися попитом теплиця з полікарбонату. Полікарбонат володіє відмінною теплопровідністю і світлопропускною здатністю, міцністю. Його основне достоїнство легкість, а також можливість експлуатації близько десятка років.

Якщо в якості покриття ви віддасте перевагу скло або склопакет, то теплиця повинна посилюватися фермами, а ще внутрішніми стійками. Скло володіє найкращою светопроводностью, довговічністю експлуатації та здатність утримувати тепло. Проте суттєвим недоліком такого покриття є його вага і крихкість.

Робимо фундамент

Теплица своими руками: поэтапная инструкцияФундамент

Фундамент повинен сприяти рівномірному розподілу навантаження всієї конструкції. Основу споруди повинно бути побудовано точно по горизонталі, з можливістю відтоку дощових вод. Для захисту від корозії і гниття встановіть між каркасом і фундаментом додатковий герметизуючий шар. Важливо, щоб підстава парника було дуже міцним, адже інакше стіни можуть піддатися деформації, а сам фундамент руйнуватиметься.

Перед закладкою фундаменту необхідно здійснити розрахунок глибини промерзання грунту. Викопайте під фундаментом спеціальну траншею, яку потім слід заповнити піском і утрамбувати. Висота даного заповнення не повинна перевищувати 20 см нижче поверхні грунту. Навколо траншеї необхідно зробити опалубку, підноситься над поверхнею землі приблизно на 20 див. Вздовж периметра укладіть в опалубку арматуру з металу, а після залийте бетоном. Такі прості маніпуляції допоможуть зробити міцний армований бетонний пояс під парник.

Будуємо каркас і покриваємо його

Теплица своими руками: поэтапная инструкцияКаркас теплиці

Міцна конструкція каркаса захистить ваш урожай від вітру і дощових днів. Стандартний тип теплиці зазвичай має розмір 6×3 м. Після облаштування і застигання підстави можна приступати до складання дерев’яного каркаса. Зміцніть опорні стінки на фундаменті. Потім по верхній частині кожної опори закріпіть горизонтальні балки. З боку півночі встановіть дверний отвір, що має розмір 2×0,7 м.

Якщо в якості покриття ви вибрали плівку, то після завершення монтажу каркаса натягніть її. Використовуйте для цієї мети цільні шматки плівкового покриття. Закріпіть плівку дерев’яними рейками, які прикріплені до опор.

Якщо ви вибрали профіль, то зазвичай його просто потрібно скрутити за заданою наперед схемою в інструкції. З іншого боку, ви можете використовувати профіль для втілення в життя власної конструкції каркаса.

Організовуємо провітрювання

Теплица своими руками: поэтапная инструкцияСистема провітрювання

Метод вихрового провітрювання являє собою ряд кватирок, які розміщені на даху вздовж всієї теплиці. Такий спосіб найбільш ефективно провітрює парник, не пошкоджуючи при цьому теплолюбні рослини.

При сквозняковом методі провітрювання повітря потрапляє через двері, які розташовуються з торця конструкції, але це може зашкодити ніжним рослинам, які чутливі до протягів.

Якщо споруда зроблена так, що захищає грунт, то при впливі сонячних променів утворюється парниковий ефект. З-за швидкого підйому повітря в теплиці буде застоюватися, що спровокує розмноження шкідників і хвороб. Проте можна регулювати мікроклімат при використанні вентиляційної системи, що забезпечує приплив свіжого повітря.

Функціонування системи вентиляції повинно поєднуватися з роботою обігрівають і темних пристроїв. Провітрюючи парник, ви сприяєте загартовуванню як овочевих, так і плодових культур. Такі заходи позитивно позначаються на розсаді, вирощуваної для висаджування у відкритий грунт. За 2 тижні до посадки розсади слід вентилювати парник практично цілодобово.

Для збереження тепла не можна допускати проникнення в неї порывистых вітрів і протягів. Якщо ваше споруду має невеликий розмір, то достатньо спорудити всього за 1 кватирці з кожного боку даху. В цілому на кожні 2 м довжини має бути не менше 2 кватирок. Для прискорення повітрообміну та охолодження важливо встановити у каркасі бічні кватирки, розташовані трохи вище поверхні грунту. Їх можна обладнати як жалюзі або зробити звичайним способом. Але такий тип повітрообміну недоречний, якщо у спорудженні планується вирощування рослин, привезених з тропіків. З-за сильних повітряних потоків, які бувають у вітряні дні, тропічні квіти можуть постраждати.

Отже, ви вже придбали деякі знання, залишилося тільки застосувати їх у життя! Звичайно, все впирається у фінансове становище, а саме вибір матеріалів для каркаса, фундаменту і покриття. Однак, чим надійніше буде ваша споруда, тим більше років вона вам прослужить!

Обігрів теплиці

Теплица своими руками: поэтапная инструкцияОпалення теплиці

Якщо ви спорудили гідну конструкцію з фундаментом і покрили її склопакетом, склом або полікарбонатом, організували якісну вентиляцію повітря, то ви можете подбати і про опалення теплиці. Адже це дозволить вам вирощувати овочеві культури, улюблені членам сім’ї, навіть в зимовий період року. Отже, як можна організувати обігрів? Сьогодні ми розглянемо 3 способу, а саме газове, дров’яне та електричне опалення.

Якщо ви хочете опалювати споруда газом, то можна зробити парове опалення, але найпростіший спосіб – використовувати газовий конвектор. Однак перш вам слід подбати про наявність газу в будівництві. Ці агрегати облаштовують спеціальними термостатами, що виключає необхідність у регулюванні пальників. Згоряють частинки будуть виводитися з тепличного приміщення на вулицю за допомогою сердечника коаксіальної труби.

Якщо розміри теплиці великі, то більш доречно використовувати газовий котел повітряного опалення. Тут теплообмінник обдувається спеціальним вентилятором, а тепле повітря розводиться по периметру алюмінієвими рукавами. Малогабаритну будівництво котел повітряного опалення зможе прогріти і без розведення повітря. Тільки врахуйте, що коаксіальні труби котла з закритою пальником і конвектором необхідно пропускати через стіну, зроблену з негорючих матеріалів.

Найбільш доступним джерелом енергії тепла і понині залишаються дрова. Найпростіше рішення – буржуйка, однак, вона не економічна. Більш розумне рішення – булерьян, що представляє собою газогенераторну піч. Навколо топливника є труби, які забезпечують перемішування повітряних потоків в приміщенні. Вона відрізняється високою економічністю і більш рідкісною закладки дров. Навіть при сильних морозах досить здійснювати закладку дров всього 2 рази на добу. Одна лише конструкція цієї печі дозволяє ефективно перемішувати повітря.

Теплица своими руками: поэтапная инструкцияЕлектроопалення

Електричне опалення з мінімальними експлуатаційними витратами дозволяє створити теплий клімат при невеликих морозах. Наприклад, ви можете використовувати інверторний побутовий кондиціонер. Нині вироблені моделі здійснюють перекачування п’яти кіловат тепла з вулиці в теплицю на кожен розтрачений кіловат електроенергії. Однак, чим нижче температура, тим менш ефективна робота агрегату.

Якщо ви проживаєте в кліматичній зоні, де в зимовий час температура падає нижче -25С, то краще обігрівати теплицю іншим способом. В такому разі більш універсальними є інфрачервоні панелі для нагріву повітря, тому що є більш економічними, ніж тепловентилятори і теплогармати. Справа в тому, що інфрачервоні панелі імітують природний обігрів сонця. Вони не гріють повітря, а передають тепло рослинам і грунті. У результаті повітря на рівні даху залишається більш холодною, ніж ґрунт і температура внизу.

Відео: монтаж теплиці із стільникового полікарбонату

Фото

Теплица своими руками: поэтапная инструкцияДерев’яна теплиця зашита склом

Теплица своими руками: поэтапная инструкция

Теплица своими руками: поэтапная инструкция

Теплица своими руками: поэтапная инструкция

Теплица своими руками: поэтапная инструкцияКріплення профілю для теплиці

Теплица своими руками: поэтапная инструкция

Теплица своими руками: поэтапная инструкция

Теплица своими руками: поэтапная инструкция

Теплица своими руками: поэтапная инструкцияТеплиця з металевого профілю

Теплица своими руками: поэтапная инструкцияЗ полікарбонату

Теплица своими руками: поэтапная инструкцияЗ старих вікон

Теплица своими руками: поэтапная инструкция

Теплица своими руками: поэтапная инструкция

Теплица своими руками: поэтапная инструкцияЗаготівля для теплиці арочної

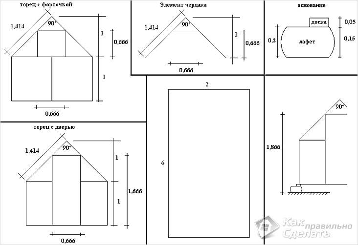
Креслення

Теплица своими руками: поэтапная инструкцияКреслення теплиці

Теплица своими руками: поэтапная инструкция

Теплица своими руками: поэтапная инструкция

Теплица своими руками: поэтапная инструкция

Теплица своими руками: поэтапная инструкция

Теплица своими руками: поэтапная инструкцияКонструкція теплиці

Теплица своими руками: поэтапная инструкцияПроект теплиці

Теплица своими руками: поэтапная инструкцияПереносна теплиця

Теплица своими руками: поэтапная инструкция

Теплица своими руками: поэтапная инструкцияСхема визначення висоти

Теплица своими руками: поэтапная инструкцияТеплиця з пластикових труб

Теплица своими руками: поэтапная инструкцияСхема теплиці з склопакета

Теплица своими руками: поэтапная инструкцияСкладові елементи теплиці

Теплиця своїми руками: поетапна інструкція

Добавить комментарий

Ваш e-mail не будет опубликован. Обязательные поля помечены *

*

code