Центром опалювальної системи в приватному будинку є опалювальний котел. Саме він виділяє енергію, яка у подальшому перетворюється, надходить теплоносій і нагріває опалювальні радіатори. У цій статті ми розповімо як зробити котел опалення своїми руками, як зварити котел для опалення приватного будинку, а також надамо креслення та інструкції фото.
Види опалювальних котлів
Котли, що працюють на газу
Перед початком самостійного виготовлення котла, необхідно визначитися з його видом, який залежить від типу палива, що нагрівається теплової носій. При бажанні можна спорудити котел, що працює від будь-якого палива. Знайти необхідну інформацію можна на ресурсах інтернету. Однак перш ніж зробити вибір, варто мати уявлення про переваги і недоліки найвідоміших з них.
- Котли для опалення, що працюють на газу. Даний вид не варто намагатися виготовити своїми руками, так як до них пред’являється дуже багато вимог, які ви навряд чи зможете задовольнити. Ну і не менш важлива причина – це висока ймовірність вибуху в ході експлуатації. Монтаж газового котла заборонений в підвальному приміщенні будинку.
- Для виготовлення електричного котла не потрібно професійних навиків і наявності безлічі матеріалів. Не можна не відзначити величезний недолік – високі ціни на електричну енергію. Є ідеальним варіантом для періодичного обігріву будиночок на дачі, але для постійного використання електричний котел дуже доріг.
- Котел з рідким паливом цілком підходить для виготовлення своїми руками, але вартість палива та особливості установки форсунок можуть викликати чималі складнощі в ході робіт.
- Серед усіх перерахованих варіантів найбільш оптимальним можна назвати котел, що працює на твердому паливі, в якості якого можна успішно використовувати дрова.
Котел для системи водяного опалення
Всім відомо, що дрова мають високу швидкість згоряння, а відповідно не встигають обігріти приміщення до потрібної температури при первісному ККД. Для того щоб оптимізувати цей процес, варто розглянути два способи самостійного споруди котлів на твердому паливі.
Піролізний варіант котла
Котел такого виду адаптований під спалювання дров, його додаткову назву – газогенераторний котел. Суть його роботи полягає в тому, що згоряння дров і виходять з них летких речовин здійснюється окремо. Завдяки процесу піролізного таких котлів вдається зберігати оптимальний температурний режим теплового носія тривалістю від 6 до 12 годин, не підкладаючи дрова.
Принцип роботи піролізного котла Робота піролізного котла не може здійснюватися без електричної енергії, яка забезпечує роботу вентилятора підтримує процес горіння примусовим способом.
Розміри таких конструкцій становлять 1,5×0,75×1,7 м. Об’єм ємності для води – 500 літрів з допомогою потужністю 50 кВт. Габарити установки можуть змінюватись виходячи з індивідуальних потреб.
Як правило, для самостійного виготовлення конструкції вам потрібно сталевий лист товщиною 4-6 мм, чавунний лист 1 см, труба зі сталі з товщиною стін 4 мм, електроди для зварювання та зварювальний апарат. Також запасіться відцентровим вентилятором, колосникових гратами, що збігається з розміром камери горіння, автоматичний пристрій для регулювання температурного режиму, азбестовий лист і ущільнювальний шнур.
По закінченні процесу виготовлення повинна бути проведена обв’язку котла опалення своїми руками з дотриманням технологічних вимог.
Пелетний тип котла
Принцип роботи котла пелетного
Цей вид котельні установки більш автоматизований і менш вибагливий у догляді в процесі експлуатації. Пелети являють собою гранульовану деревину, для виготовлення якої використовуються тирса і стружка. Оскільки цей матеріал сипучий, їх подача в камеру для згоряння здійснюється автоматично з допомогою шнека, або бункера.
Пелети У вас можуть виникнути труднощі при виготовленні такого котла через відсутність певного електричного обладнання: електричного двигуна для забезпечення роботи шнека, або бункерного заслінки.
Робота пелетного котла виконується таким способом, при якому відпадає необхідність у розпалюванні або додаванні палива. На це впливають габарити бункера. Завдяки принципу роботи котельної установки можна контролювати кількість тепла, що виділяється за рахунок кількості поданих пелет в топку.
Ці два види котлів є оптимальними для власноручного виготовлення. На якому з них зупинити свій вибір, вирішувати вам. Це визначається багатьма факторами, головним із яких є потреба в теплі і наявності певного виду палива, яке ви будете застосовувати.
При будь-якому варіанті необхідно суворо дотримуватися технології та дотримуватися правил безпеки.
Відео
Подивіться, як можна самостійно зробити котел тривалого горіння:
У цьому відео демонструється твердопаливний котел шахтного типу з теплоаккумулятором:
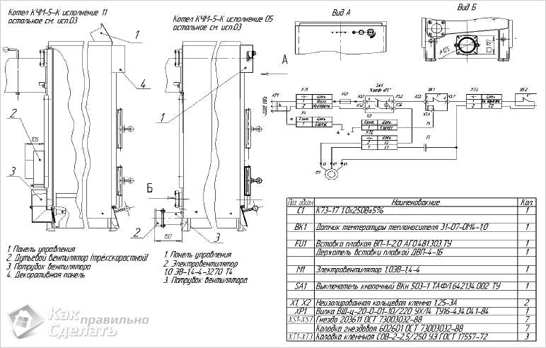
Схеми і креслення
Пристрій печі повільного горіння
Пристрій котла пелетного
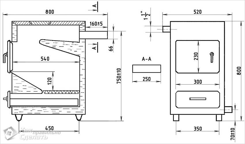
Креслення твердопаливного котла
Креслення з розмірами для створення твердопаливного котла
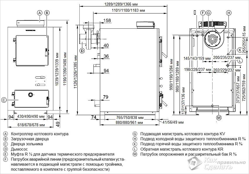
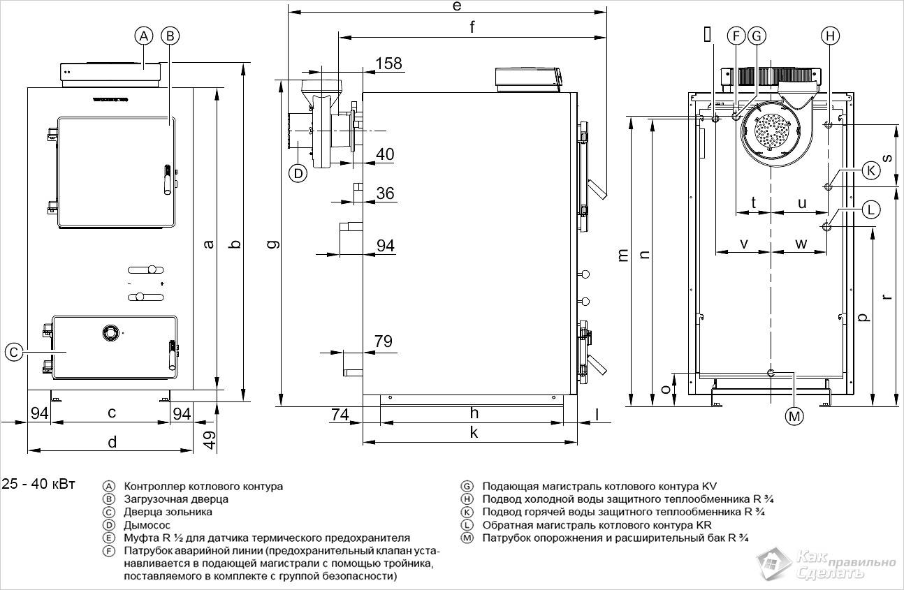
Креслення піролізного котла Viessmann на 25-40 кВт
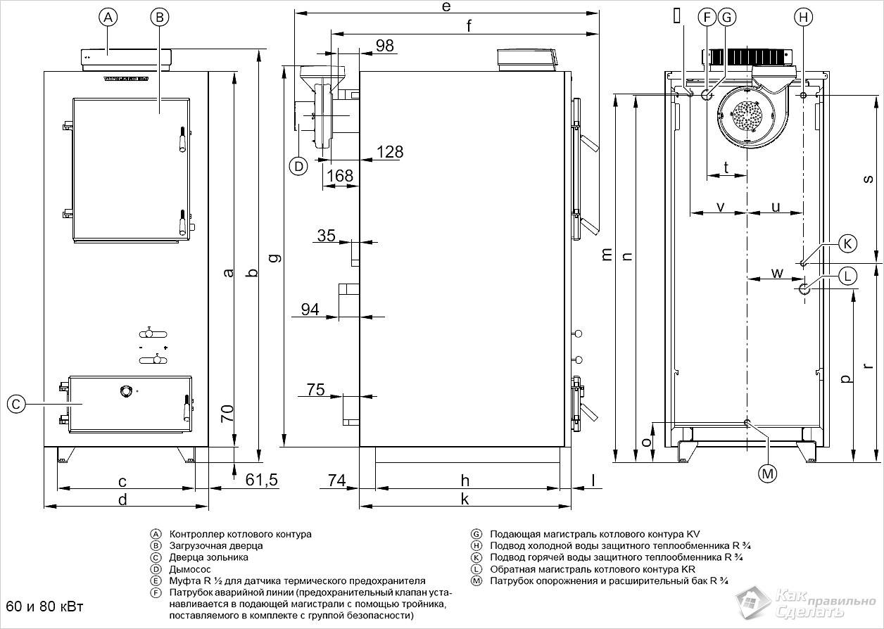
Viessmann на 65 та 80 кВт
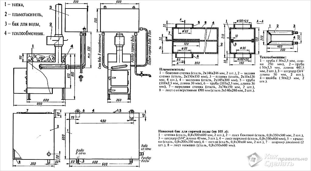
Креслення котла для самостійного виготовлення
Піч повільного горіння
Креслення печі на відпрацювання
Простий і безпечний банний котел
Фото
Зварювальні роботи при виготовленні котла
Виготовлення котла в домашніх умовах
Переробка сейфа в піч
Піч-камін з режимом тління до 8 годин
Пічка повільного горіння з газового балона
Саморобна металева піч
Надійний і економічний твердопаливний котел
Котел опалення на відпрацьованому маслі
Виконаний з бочки
Випробування саморобного котла тривалого горіння
Читайте також:
- геотермальний тепловий насос своїми руками;
- як вибрати хороший перфоратор.




