Головний елемент парилки – звичайно ж, нагрівальна піч для лазні. Сучасне промислове виробництво пропонує на заміну традиційним дров’яним каменкам безліч моделей: на рідкому паливі, на газі з металевим корпусом, що працюють на пелетах. Заводські вироби оснащені безліччю функцій і економно витрачають паливо. Та й догляд за ними мінімальний.
Варіантів саморобних пристроїв для парної існує безліч, в залежності від типу приміщення. Наприклад, бувають так звані холодні печі, тобто такі, у яких зовнішні стінки не прогріваються вище 50°C. Це важлива перевага, оскільки така конструкція не дає обпектися. Подібні агрегати потребують довгої безперервної розтоплення. Обігрів відбувається через спеціальні повітроводи. Вони вбирають повітря від підлоги і розігрівають його, пропускаючи крізь топкову камеру. Теплий і м’який пар виходить зверху, нікого не обпалюючи. У такій лазні легко регулювати рівень вологості і температуру нагрівання.

На відміну від «холодних», «гарячі» печі швидко і ефективно прогрівають парну за рахунок розжарених стінок, температура яких може доходити до 100°C. Необережні дотику до них загрожують опіками, так і ступінь нагрівання повітря в даному випадку важко контролювати. А це загрожує тепловим ударом.
З цегли
З цегли з баком для води
Добротна і проста «холодна» піч для лазні конструктивно виглядає так: топкова камера виконується з вогнетривкої цегли, під нею розташовується зольник. Зверху для збереження спека розкладаються булижники на сталеву чи чавунну решітку. Їх масу розраховують із співвідношення: на 1 м3 парилки потрібно 20-30 кг каменів. Ця пропорція правильна для безперервно працюючих пристроїв. Якщо нагрів відбувається періодично, тобто після прогріву приміщення до потрібного рівня її гасять, тоді кількість треба збільшити ще в 2 рази. Іноді для кращого втримання тепла додають чавунні чушки у співвідношенні 20% на 80% каменю.
Самі стіни, крім цегли, можна виконати зі звичайного або бутового каменю. Деколи для будівництва беруть граніт або голяк. Вага кожного елемента – від 1 до 5 кг. Не намагайтеся будувати з кремнію – від нагрівання той просто лопне.
В якості сполучного розчину при кладці кам’янки можна використовувати тільки глину з піском. Звичайний цементний розчин не витримає високих температур і не прослужить і року.
Глиняний розчин
Глина замочується у воді на кілька діб і змішується з просіяним піском до консистенції густої сметани. Пісок краще брати не річковий, а гірський. Його межі нерівні, нешліфовані і забезпечують краще зчеплення.
Піч з обпаленої цегли з камінням важить чимало, тому під неї доведеться робити фундамент. Для цього достатньо котловану глибиною 70 див.
На дно засипають 15 см піску і щебені. Потім все заливається шаром бетону, бажано з армуванням. Зверху застиглий фундамент закривають рулонами руберойду для гідроізоляції.
Цегляна піч на міцному фундаменті
Відзначимо деякі моменти:
- Кут лазні, де встановлюється піч, повинен бути теплоізольований і укріплений. Крім небезпеки займання, в ньому буде спостерігатися великий перепад температур, який здатний привести до появи тріщин в стінах.
- Перший ряд укладається на рубероидную підкладку без розчину, насухо.
- Інші блоки при роботі змочуються водою, кожен новий ряд укладається з перев’язкою (зі зміщенням відносно попереднього).
- Потрібно стежити за тим, щоб сторони цегли, звернені всередину топкової камери, були цілими, без сколів і тріщин. Стінка тут повинна бути як можна більш гладкою, оскільки будь-яка вибоїна провокує руйнування споруди. В той же час не можна обмазувати внутрішні поверхні глиною — висохши, вона почне відшаровуватися і засмічувати димохід,
- Після завершення робіт з кладки, піч треба просушити. Для цього або її залишають на 15 днів при хорошому припливі повітря, або декілька раз протоплюють в щадному режимі.
Відео: кладка кам’янки 3×3,5 цеглини
Креслення
Види печей з цегли
Схема цегляної печі-кам’янки
Приклад порядовки

З стоїть окремо ємністю для води
Порядовка
Металева піч
Металева банна піч
На відміну від цегляних споруд, металеві агрегати компактні і швидко прогріваються самі і нагрівають приміщення.
Для металевої печі теж потрібен фундамент. Хоча її маса значно менше кам’яного побратима, тим не менше, і під неї потрібно зробити надійне підгрунтя.
Фундамент під металеву піч
Вихідним матеріалом послужить товстолистова сталь або труби великого діаметру. По конструкції така піч буде аналогічна кам’яної. Єдина відмінність – топка. Її прийнято робити двокамерної, щоб у другому відділенні могло відбуватися спалювання палива. Подібна схема дозволяє збільшити продуктивність на 20%.
Корпус повинен бути повністю проварений – зварювання прихватками тут не підходить.
Головним недоліком сталевий печі можна вважати велику розпечену поверхню, небезпечну для людей. Однак це легко поправити. Після установки корпус просто обкладається вогнетривкою цеглою, для конвекції залишають щілини.
Обкладання цеглою
Відео: виготовлення металевої печі для лазні поетапно
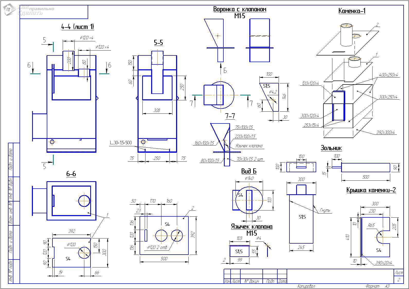
Креслення і схеми металевих печей
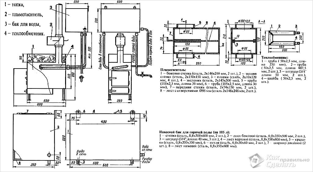
Пристрій котла для лазні
Пристрій металевої печі-кам’янки
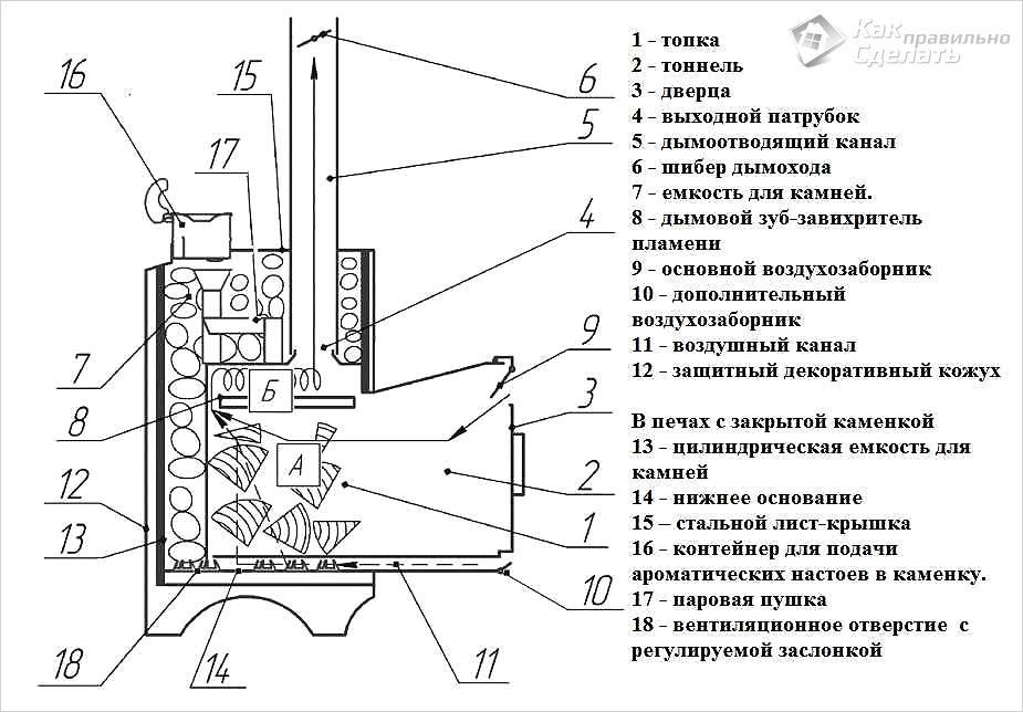
Пристрій печі для лазні із закритою кам’янкою
Піч на відпрацювання
Схема металевої печі-кам’янки
Креслення безпечного простого банного котла
З вбудованим баком для нагріву води
Креслення металевої печі
Принцип роботи котла на відпрацювання
Саморобна металева піч з труби
Кам’янка з металу з баком для води
Креслення буржуйки
Міцна піч




