Септик в заміському будинку необхідний. Побудувати його можна без виклику професійної бригади, правда, не поодинці, а з парою вірних друзів. Тому що будівництво зажадає багато фізичних витрат. У даній статті ми розповімо як самостійно зробити і встановити септик.
Пристрій
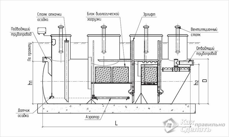
Пристрій септика
Септик — це пристрій, який служить в якості очисної споруди. Він складається з двох — трьох камер. Стоки послідовно проходять через них, очищаючись. Монтаж такої системи новачкам здається чимось складним. Насправді облаштування септика — це просто багато важкої фізичної праці. Нічого складного в цьому немає. Зробити просту трисекційну конструкцію зможе і новачок.
Типи очисних споруд
Переливні колодязі
Взагалі на дачі може бути кілька типів очисних споруд.
- Самий примітивний і простий вид очисної споруди — вигрібна яма. Достоїнств у неї практично немає (за винятком легкості облаштування). Зате мінусів — повний набір, їх навіть не варто перераховувати.
- Пластиковий очищувач. Ця система працює непогано, але регулярно засмічується. До того ж, вона вимагає періодичних відвідувань асенізатора.
- Переливні колодязі. Ця система будується дуже довго і важко. Асенізатор їй також необхідний.
- Спеціальні станції. Це той вид септика, який буде тут розглядатися. Такі системи є найсучаснішими. Їх облаштування, звичайно, займе певний час.
Монтаж
Установка на ділянці
- В першу чергу треба вибрати і купити станцію очищення. Залежно від стану грунтових вод, необхідно підбирати станцію з примусовим стоком або без нього. Примусовий стік здійснюється на основі насоса.
- Після покупки треба приступати до земляних робіт. Орієнтовно треба зробити котлован розміром 2,5 м в довжину, півтора метра завширшки і стільки ж в глибину.
- Станція опускається на дно котловану. В неї наливається вода. По краях потрібно насипати пісок і добре утрамбувати.
- На наступному етапі оформлюються підводять стоки. Треба копати канави і підвести до станції труби.
- Останній етап — підключення станції. Вона потребує електроенергії.
Септик готовий. Тепер його можна експлуатувати.
Правила
Очищення стоків
- Періодично систему доведеться очищати. Так, фільтри чистяться раз на два-три роки, а от сама система повинна перевірятися приблизно раз в сезон. У станції бувають скупчення мулу, які можуть зруйнувати роботу септика.
- Краще не використовувати занадто багато різних хімічних речовин, відбілювачів і чистячих порошків. Це сильно навантажує систему.
- Іноді подача енергії відключається. У цей період треба обмежити навантаження на систему.
- При установці системи треба враховувати, що відстань від будинку до септика має бути не менше 6 -7 метрів.
- Якщо септик облаштовується поблизу стоянок, то відстань можна скоротити в три рази.
- Септики різняться обсягами камер. Щоб вибрати необхідну за розмірами систему, треба врахувати, скільки води їй доведеться відводити. Вважається, що середня людина витрачає в день на потреби гігієни близько 300 літрів води. Септик при цьому повинен мати обсяг, у три рази перевищує цю цифру.
В ідеалі станція повинна бути розташована на глибині, яка нижче рівня промерзання грунту. Якщо зробити цього не вдалося, то систему необхідно додатково утеплювати.
Очищення
Очищення септика
Щоб ефективно проводити очищення, треба розібратися в принципах його роботи. В камері септика відходи і фекальні маси під впливом особливих бактерій перетворюються в мул. Вони доходять до кінцевої стадії переробки.
Одна з основних проблем, яка зустрічається на приватних ділянках, пов’язана з мулом і засміченням септика. Часто це відбувається через загибель бактерій, які служать для переробки відходів. Знищити бактерії могли стоки з хлором. Для очищення камери можна використовувати спеціальні препарати. Звичайно в них містяться всі ті ж бактерії для каналізаційних стоків. Відновивши баланс бактерій, можна вирішити проблему з засорениями.
Облаштування
Якщо вміст очисної камери стало твердим або всередині неї утворилася кірка, то справитися з цим можна точно так само з допомогою бактерій. Перед приміщенням препарату всередину камери його треба розвести водою.
Погано впливає на роботу бактерій марганець. Його дія подібна до впливу хлорованих вод.
Септики, конструкція яких заснована на баках-накопичувачах очищаються дуже просто. Для цього треба тільки вивезти старий бак з відходами і поставити новий. У разі якщо очищення системи не здійснюється сама, то доводиться вдаватися до примусової мірою з використанням асенізаційних машин. Проводиться відкачка вакуумними дренажними насосами.
Пристрій септика перед будинком
Система каналізації на дачі
- Місце. Септик треба розташовувати далеко від дому. Також він повинен відстояти на 50-60 метрів від водозабору. Інакше стічні води почнуть потрапляти в водозаборник.
- Треба вирити котлован глибиною більше двох метрів. Його довжина повинна бути приблизно 3,5 метра, а ширина-2,5 метра. Після установки стін ці параметри скоротяться на півметра.
- Котлован ділиться на дві нерівні частини. Після цього встановлюється опалубка. Бажано використовувати при бетонуванні арматуру і камені. Між двома камерами робиться похила труба, по якій стічні води почнуть зливатися. Дно котловану ні в якому разі не бетонується.
- На останньому етапі робиться дах. Вона повинна мати армуючі елементи. Коли дах готова, спорудження засипається землею.
Середній термін роботи септика без очищення — від 3 до 10 років залежно від кількості відходів.
Септик дозволяє власнику дачі повністю використовувати за містом всі блага цивілізації. Дощаті будиночки і вигрібні ями давно пішли в минуле. Сучасні технології дозволяють створювати за містом повноцінну систему каналізації. Завдяки їй на дачі можна приймати душ і ванну, будувати справжній туалет, використовувати сауну і багато іншого. Септик для будинку можна зробити приблизно за тиждень, а використовувати його людина роками.
Ремонт
Креслення
Сучасні камери для очищення працюють досить довго без будь-яких збоїв за умови, що дотримуються всі правила по експлуатації. Якщо ж виникла якась несправність, то вирішити її може сам господар септика. Найчастіше пристрої виходять з ладу із-за засмічень фракцій. Для того щоб вирішити цю проблему, треба як слід оглянути агрегат і прочистити його.
Ремонт септика зводиться до наступного:
- заміна фільтрів;
- прочищення фракцій;
- промивка камери.
Робота септика
Багато проблем може доставити звичайне відключення електрики. У цьому випадку септик на деякий час перестає працювати. Мулисті маси можуть просто засохнути. Це призведе до того, що система повністю відмовить, і доведеться викликати фахівців. Втім, майстер сам може прочистити пристрій. Однак у випадку серйозних засмічень треба буде демонтаж для повного очищення.
Для того щоб септик працював справно, треба стежити за ним. Приблизно 3 рази на рік треба відкачувати надлишки відходів з допомогою дренажного насоса. Це не дуже складна операція, тому власник може впоратися з нею сам. Також періодично доведеться очищати і міняти фільтри. Приблизно це треба робити раз у рік. Аераційні елементи системи потребують заміни раз в 10 років. При правильному догляді ніяких проблем не виникне. У період, коли електроенергія не надходить, краще обмежити навантаження системи до мінімуму.
Відео
Про вибір і монтаж септика піде мова в наступному відеоматеріалі:




