При виборі конструкції невеликій дитячій пісочниці необхідно враховувати не тільки її пряме (функціональне) призначення, але також звернути увагу на те, наскільки гармонійно вона буде «вписуватися» в навколишній пейзаж.

Найбільш підходящим матеріалом для пісочниці буде звичайна деревина. Давайте розглянемо як зробити пісочницю своїми руками.

Основні питання:

  • яку конструкцію вибрати;
  • скільки дощок потрібно для її виготовлення;
  • як вибрати потрібне колірне рішення.

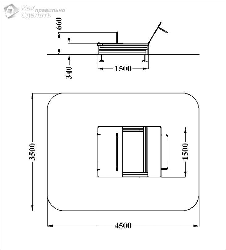
Конструкція і розміри пісочниці для дитячого майданчика

Как самостоятельно сделать песочницу для ребенка на участке: советы по изготовлениюКонструкція і розміри пісочниці

Особливих вимог до розміру дитячих пісочниць не пред’являється. Якщо на території ділянки достатньо вільного місця – ви можете вибирати будь-які зручні для вас габарити (в межах розумного, звичайно). Найчастіше пісочницю роблю квадратної, що помітно полегшує підготовчі роботи, пов’язані з різанням заготовок однакового розміру.

Дошки можуть мати довжину 4, 5 або 6 метрів при ширині близько 12 див. Що стосується висоти стінок всієї конструкції, то тут оптимальним вважається розмір близько 24 см, що відповідає зв’язці з двох дощок. Таким чином, якщо у вашому розпорядженні є п’ятиметрові дошки – для складання всієї пісочниці вам буде потрібно вісім штук.

Товщина дощок, що йдуть на її виготовлення, вибирається зазвичай дорівнює 30 мм. Заготовки такої товщини забезпечують необхідну міцність і надійність конструкції і виключають можливість розтріскування. Глибина піщаного насипного шару, що використовується для наповнення пісочниці, вибирається рівною 15 див.

Оскільки природна деревина не захищена від гниття і атак паразитів – весь використовуваний для складання каркаса матеріал обов’язково повинен бути оброблений антисептиком.

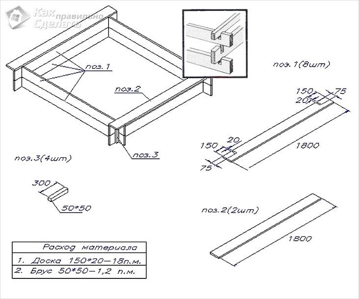
Основні етапи виготовлення пісочниці: порядок робіт

Как самостоятельно сделать песочницу для ребенка на участке: советы по изготовлениюПорядок виготовлення

Після того, як усі дошки приготовані – ви можете переходити до спорудження каркаса. Для скріплення окремих елементів конструкції між собою можна використовувати заздалегідь підготовлені металеві кутники, які кріпляться на дошках допомогою саморізів.

Можна, звичайно, обійтися і без куточків; але тоді половина дощок, використовуваних для складання каркаса повинна бути на 6-7 мм довше. У цьому разі частина збірних дощок кріпиться на торцях суміжних заготовок за допомогою звичайних саморізів по дереву, що дозволяє отримувати досить надійний та міцний каркас.

В умовах заміського ділянки обов’язково потрібно буде потурбуватися про день пісочниці; причому підійти до цього питання необхідно з усією серйозністю. Захистити ігровий майданчик від проникнення на неї гризунів, зокрема, можна шляхом застилки дна спеціальним агроволокном, краї якого закріплюються на дошках з допомогою меблевого степлера.

Вибір місця для розміщення конструкції

Как самостоятельно сделать песочницу для ребенка на участке: советы по изготовлениюВибір місця

При виборі підходящого місця виходять з наступних міркувань:

  • місце не повинно бути відкрито для вітрів і сонця;
  • місце дитячих ігор повинно добре проглядатися з усіх точок саду, тобто було б «на увазі»;
  • повинен бути «козирок».

Краще всього розташувати пісочницю під кроною дерев або ж таким чином, щоб на неї більшу частину дня падала тінь від найближчої будівлі.

Що стосується колірного рішення, то воно повинно вибиратися на ваш особистий розсуд (за смаком). Палітра квітів повинна бути досить різноманітною, а також по можливості яскравою і насиченою. По боках дерев’яного каркасу можна нанести візерунки або рисунки.

Поради фахівця

Как самостоятельно сделать песочницу для ребенка на участке: советы по изготовлениюДолоньки

Наведемо кілька порад:

  1. Форма зовсім не обов’язково повинна бути квадратною. Якщо спробувати відійти від шаблонів, то цілком можна уявити собі трикутну, трапецієподібну і навіть багатокутну конструкцію.
  2. У самій пісочниці можна підготувати якісь лабіринти, проходи і канавки, в яких малюкові буде цікаво влаштовувати рухливі ігри.

Відео

Фото пісочниць: 14 незвичайних ідей

Как самостоятельно сделать песочницу для ребенка на участке: советы по изготовлениюЗ навісом

Как самостоятельно сделать песочницу для ребенка на участке: советы по изготовлениюПісочниця з хатинкою

Как самостоятельно сделать песочницу для ребенка на участке: советы по изготовлениюПісочниця закривається

Как самостоятельно сделать песочницу для ребенка на участке: советы по изготовлениюОригінальна ідея

Как самостоятельно сделать песочницу для ребенка на участке: советы по изготовлениюКораблик

Как самостоятельно сделать песочницу для ребенка на участке: советы по изготовлениюКонструкція зі столиком

Как самостоятельно сделать песочницу для ребенка на участке: советы по изготовлениюБудиночок друзів і пісочниця

Как самостоятельно сделать песочницу для ребенка на участке: советы по изготовлениюПісочниця човник

Как самостоятельно сделать песочницу для ребенка на участке: советы по изготовлениюЗ колод

Как самостоятельно сделать песочницу для ребенка на участке: советы по изготовлениюПісочниця драбинка

Как самостоятельно сделать песочницу для ребенка на участке: советы по изготовлениюНа дитячому майданчику

Как самостоятельно сделать песочницу для ребенка на участке: советы по изготовлениюЗакривається тентом

Как самостоятельно сделать песочницу для ребенка на участке: советы по изготовлениюПроста пісочниця

Как самостоятельно сделать песочницу для ребенка на участке: советы по изготовлениюПісочниця закрита

Схеми і креслення

Как самостоятельно сделать песочницу для ребенка на участке: советы по изготовлениюКреслення пісочниці

Как самостоятельно сделать песочницу для ребенка на участке: советы по изготовлениюКреслення квадратної пісочниці

Как самостоятельно сделать песочницу для ребенка на участке: советы по изготовлениюДеталювання пісочниця

Как самостоятельно сделать песочницу для ребенка на участке: советы по изготовлениюКонструкція пісочниці

Как самостоятельно сделать песочницу для ребенка на участке: советы по изготовлениюПідстава для пісочниці

Как самостоятельно сделать песочницу для ребенка на участке: советы по изготовлениюПісочниця мушля

Как самостоятельно сделать песочницу для ребенка на участке: советы по изготовлениюПісочниця з відкидною кришкою

Как самостоятельно сделать песочницу для ребенка на участке: советы по изготовлениюСхема квадратної пісочниці

Как самостоятельно сделать песочницу для ребенка на участке: советы по изготовлениюСхема пісочниці з навісом

Как самостоятельно сделать песочницу для ребенка на участке: советы по изготовлениюЗ навісом і кришкою

Как самостоятельно сделать песочницу для ребенка на участке: советы по изготовлениюЗбірка пісочниці

Как самостоятельно сделать песочницу для ребенка на участке: советы по изготовлениюУстановка кришки

Як самостійно зробити пісочницю для дитини на ділянці: поради по виготовленню

Добавить комментарий

Ваш e-mail не будет опубликован. Обязательные поля помечены *

*

code